HMBK IMMO - VILLEJUIF

bureau

Année : 2025 - projet en cours
Surface : 1 120m² ( ajout 735m² )
Budget : 900 000 euros HT
Mission de conception ( projet en cours) + suivi architecturale

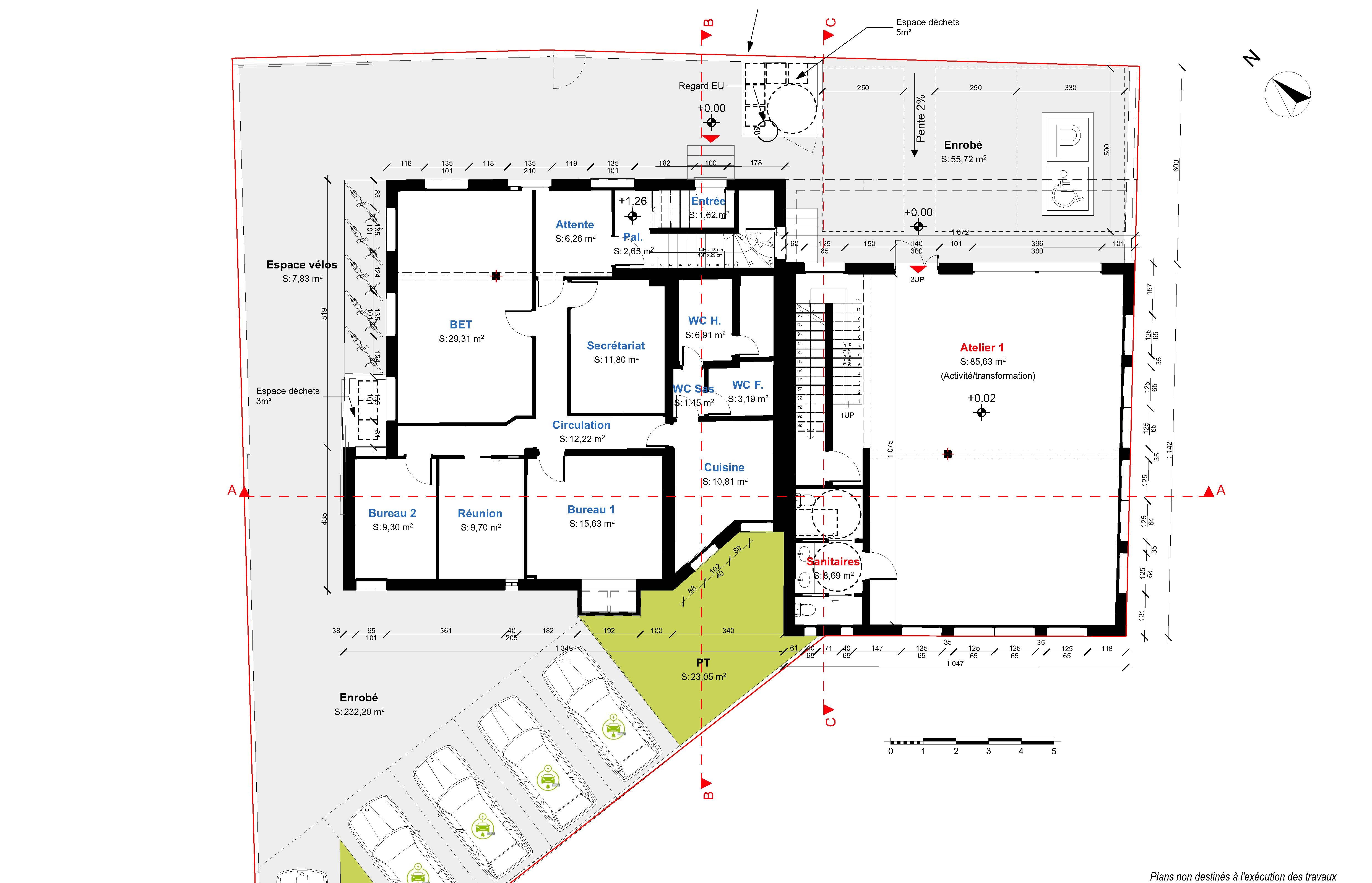
Le projet prévoit l’extension d’un bâtiment de bureaux pour une société d’électricité située à Villejuif. Cette transformation passera par une surélévation qui permettra d’ajouter 735 m² de surface, comprenant de nouveaux bureaux, des salles de réunion ainsi que plusieurs espaces communs favorisant le confort et la convivialité.
Les accès, les circulations intérieures et les parkings seront également repensés afin d’optimiser la fluidité des déplacements et de répondre aux besoins croissants de l’entreprise.
À terme, le bâtiment offrira un cadre de travail modernisé, lumineux et fonctionnel, pensé pour accompagner le développement de la société et améliorer le bien-être de ses collaborateurs.

X