






Delescluze - VILLEJUIF
habitation extensionAnnée : 2021
Surface : 52m²
Budget : 180 000 euros HT
Mission complète
Maitrise d'ouvrage privée
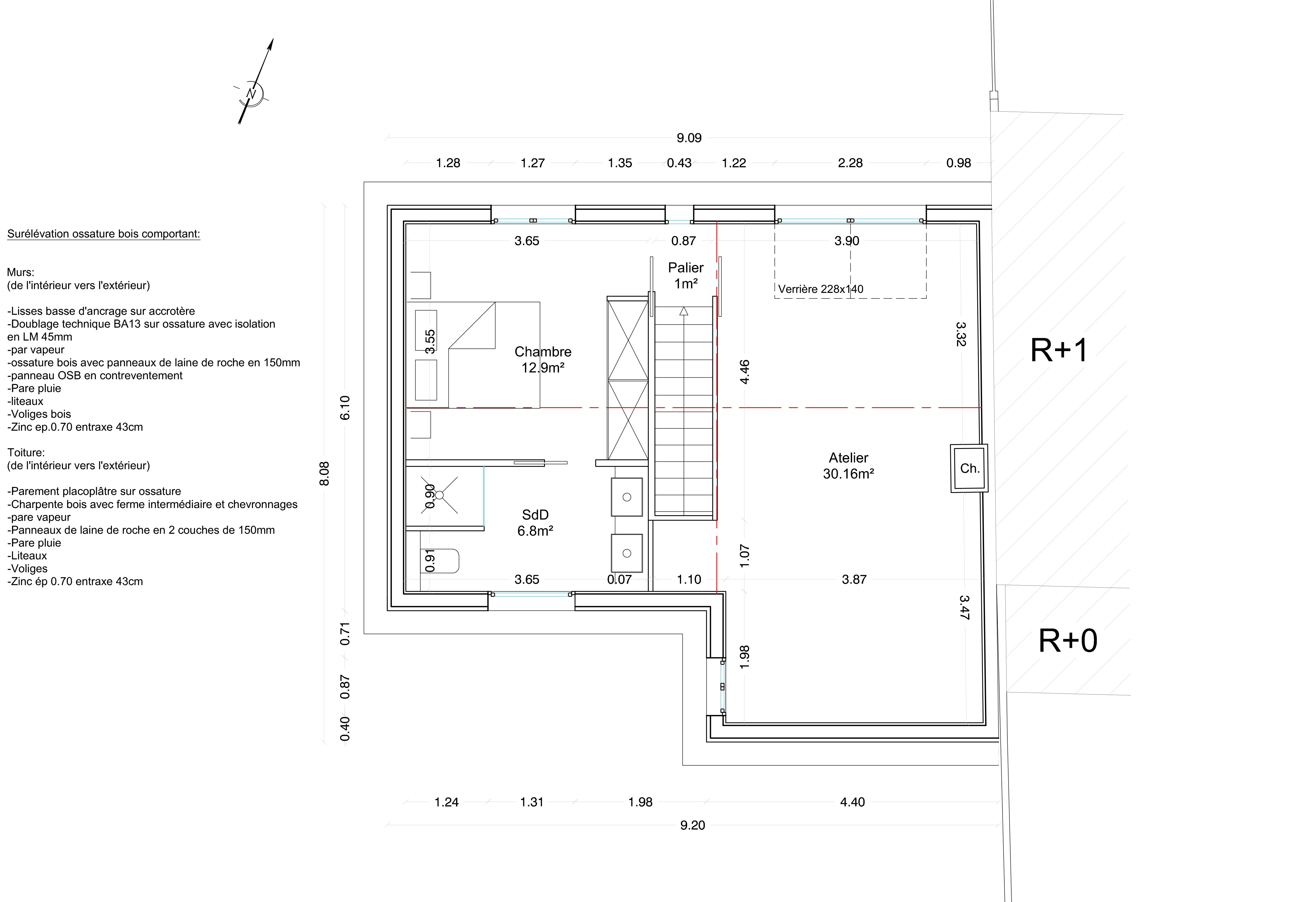
Ce projet consiste en la surélévation d’une maison individuelle à Villejuif, réalisée en zinc, apportant à la fois modernité et élégance à la construction existante. La nouvelle extension accueille une chambre spacieuse, une salle de bain contemporaine et un grand atelier baigné de lumière, offrant un espace de travail créatif et modulable.
Le projet inclut également la reprise complète de l’escalier pour assurer une circulation fluide entre les niveaux et la rénovation de la toiture, garantissant à la fois performance thermique et esthétique soignée. La surélévation se distingue par son intégration harmonieuse au bâti existant tout en apportant une touche contemporaine, révélée par le choix du zinc et les lignes épurées du volume.
Chaque détail a été pensé pour optimiser la lumière naturelle, le confort et la fonctionnalité des espaces, faisant de cette maison un lieu à la fois pratique, lumineux et inspirant.