







Moulin - VILLEJUIF
habitation neufAnnée : 2025
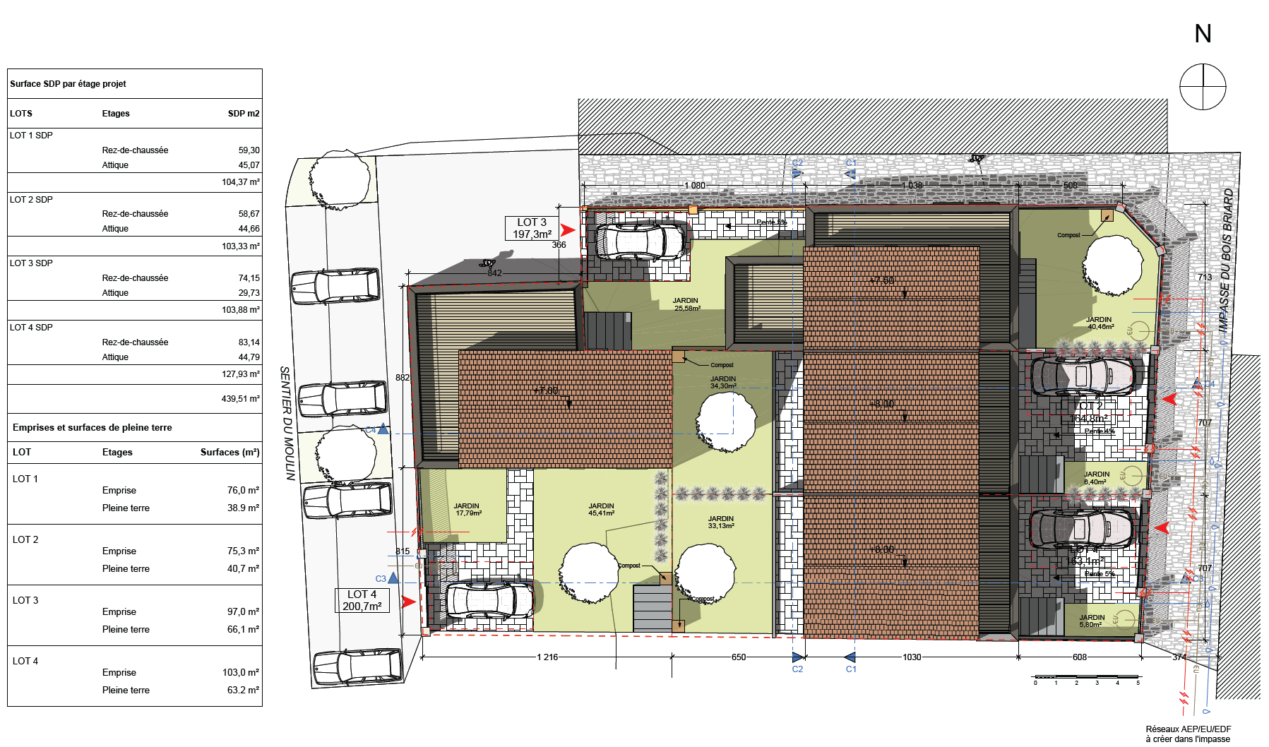
Surface : 440m²
Budget : 900 000 euros HT
Mission de conception + permis de construire + suivi architecturale
Maitrise d'ouvrage Aeven Holdings
Sur un terrain de 723 m² situé dans le centre ville de Villejuif, ce projet a permis la réalisation de quatre maisons de ville pensées pour offrir confort et qualité de vie à leurs habitants.
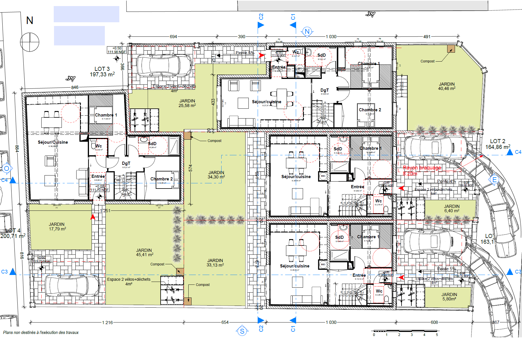
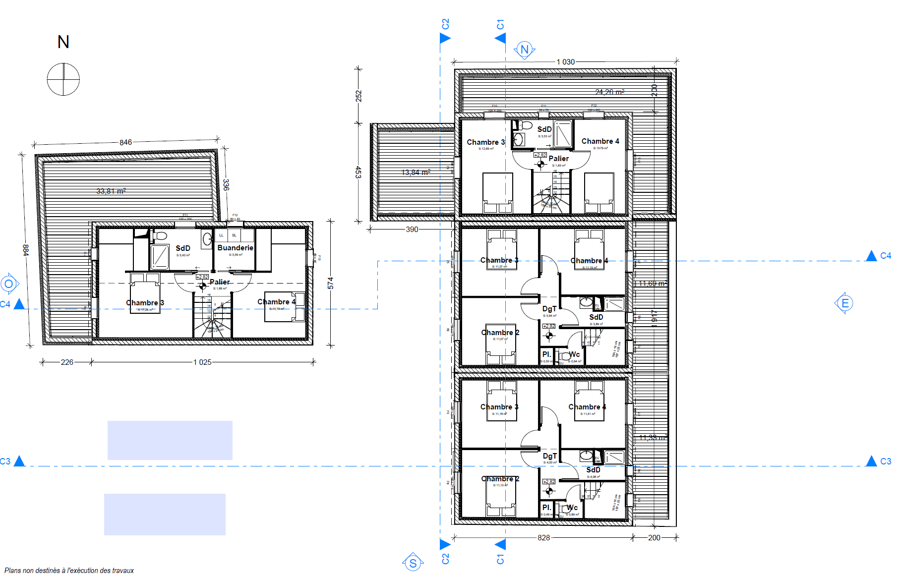
Chaque logement, développé sur deux niveaux, bénéficie d’une organisation fonctionnelle et lumineuse, adaptée aux besoins d’une vie familiale contemporaine. La toiture à double pente reprend les codes traditionnels du quartier, assurant une intégration harmonieuse dans l’environnement existant.
Chacune des maisons dispose en outre d’un jardin privatif, créant un véritable prolongement des espaces intérieurs vers l’extérieur et apportant une qualité de vie supplémentaire en milieu urbain.
Ce projet illustre une approche architecturale équilibrée, conciliant densification maîtrisée, respect du contexte pavillonnaire et confort quotidien pour les habitants.