








Liebknecht - VILLEJUIF
habitation neufAnnée : 2023
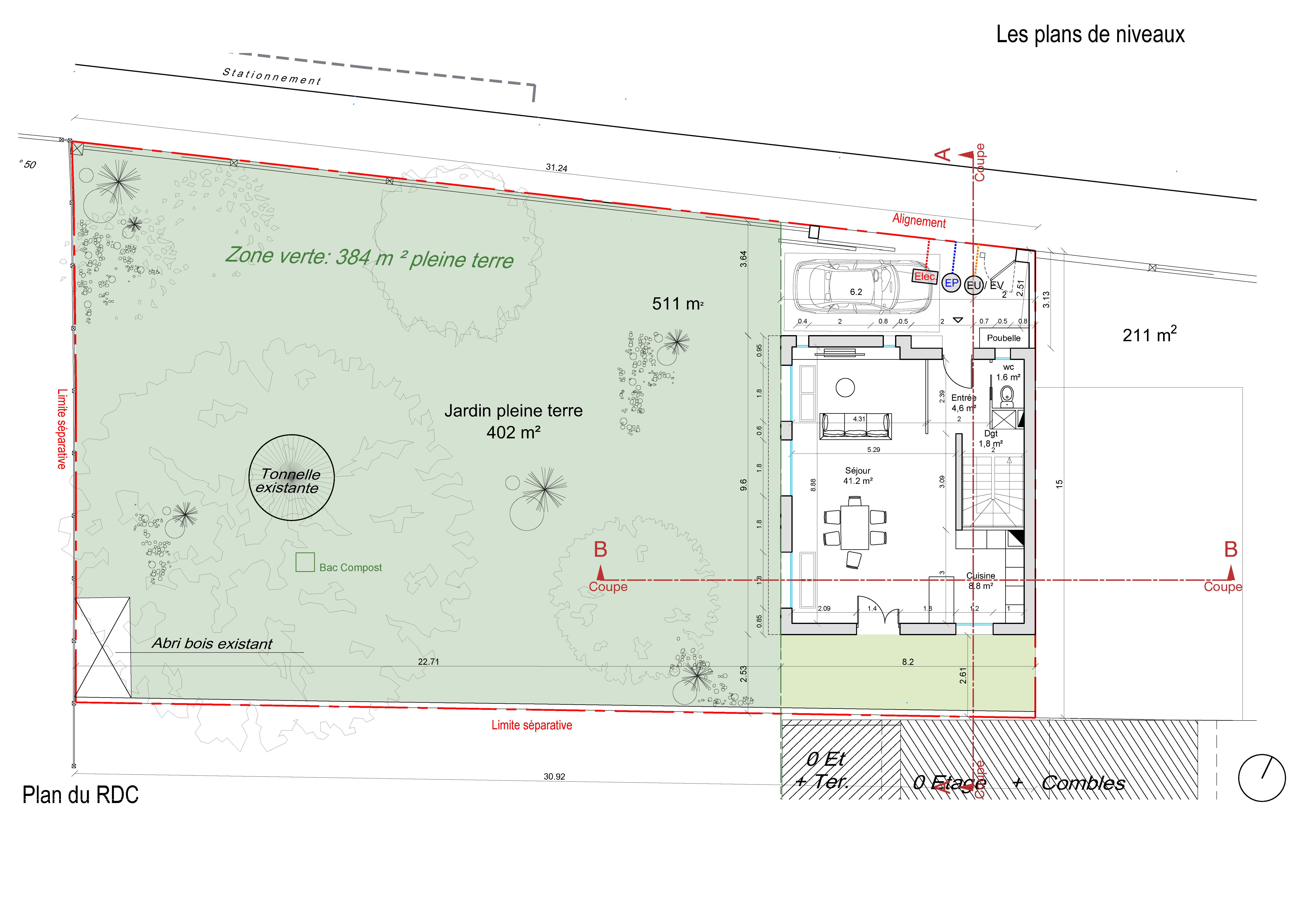
Surface : 214 m²
Mission de conception
Maitrise d’ouvrage privée
Ce projet a consisté en la réalisation de deux maisons contemporaines pensées pour répondre aux besoins de deux familles familles, alliant confort, luminosité et efficacité énergétique.
L’architecture des bâtiments joue sur l’équilibre des volumes et des matériaux : des façades aux teintes contrastées, associant enduit clair et bardage métallique, créent une identité moderne et élégante tout en s’intégrant harmonieusement dans le tissu urbain environnant. Les grandes ouvertures assurent une abondante lumière naturelle à l’intérieur, renforçant la sensation d’espace et de fluidité.
À l’intérieur, les 214 m² ont été conçus pour offrir des espaces généreux et fonctionnels. Les pièces de vie, largement ouvertes, favorisent la convivialité, tandis que les chambres et espaces privatifs apportent confort et intimité. L’agencement a été pensé pour optimiser chaque mètre carré, tout en laissant une place importante à la personnalisation des usages.
Cette construction illustre une volonté de concilier modernité architecturale, qualité de vie et durabilité, dans un cadre urbain en constante évolution