







19 mars 1962 - VILLEJUIF
habitation restructurationAnnée : 2023
Surface : 110m²
Budget : 275 000 euros HT
Mission complète
Maitrise d'ouvrage privée
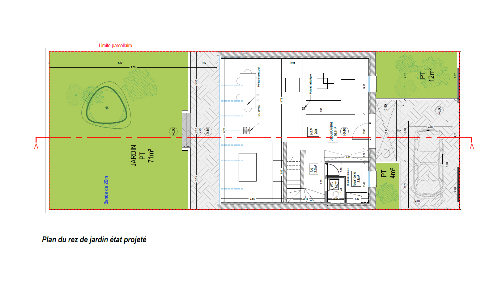
Ce projet consiste en la restructuration intégrale d’une maison individuelle de 110 m² à Villejuif, transformant profondément les espaces existants pour répondre aux besoins contemporains. Une véranda en aluminium et verre a été créée au rez-de-jardin, apportant lumière naturelle et ouverture sur l’extérieur, accompagnée d’une cour anglaise décaissée qui structure et valorise l’espace extérieur.
Le projet inclut la reprise des fondations et un décaissement de 40 cm afin de gagner en hauteur utile, permettant de transformer le rez-de-jardin en un véritable rez-de-chaussée habité. Cette intervention a permis de réorganiser les espaces de manière optimale : l'ancien rez-de-chaussée surélevé devient désormais le premier étage accueillant un espace de nuit de trois chambres, offrant confort et intimité pour la famille.
Chaque intervention a été pensée pour allier performance technique, confort quotidien et esthétique contemporaine, créant un intérieur lumineux, fonctionnel et parfaitement intégré au bâti existant.