



Cabinet dentaire - VILLEJUIF
commerce ERPAnnée : 2024
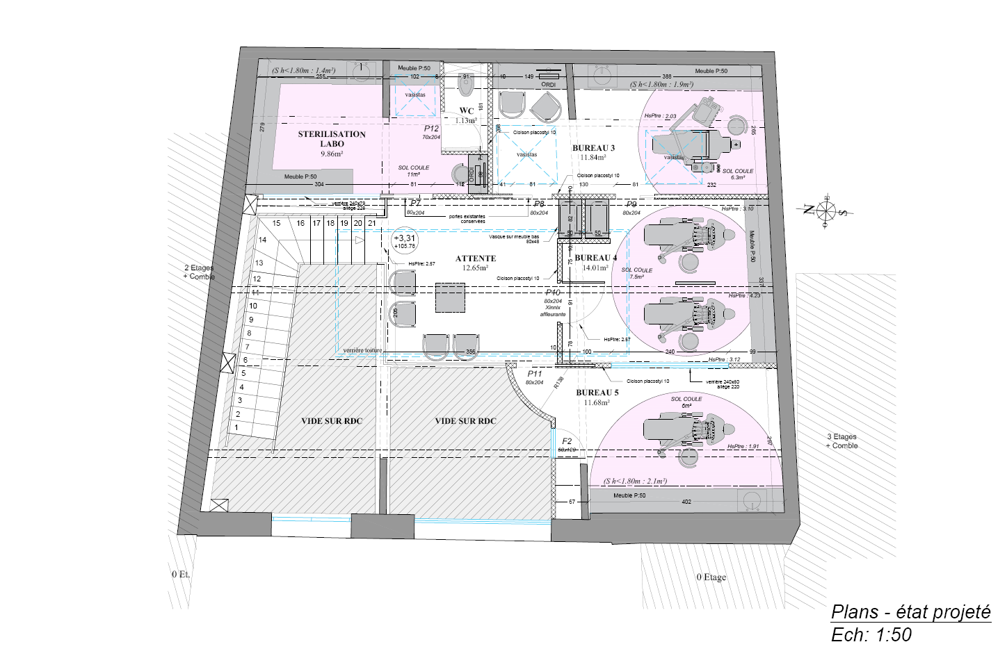
Surface : 165m²
Mission de conception et dépôt des pièces administratives
Maitrise d’ouvrage privée
Cette maison de ville a été entièrement repensée et rénovée afin d’accueillir un cabinet d’orthodontie moderne, réparti sur trois niveaux. Le projet a nécessité une restructuration complète, avec la modification de la toiture et l’ajout de surfaces afin d’optimiser la fonctionnalité et le confort des espaces.
Le programme intègre plusieurs zones techniques et médicales : salles de rendez-vous, laboratoire de fabrication, salle de radiographie et salle d’empreintes. Chaque espace a été conçu pour répondre aux normes d’hygiène et de circulation, tout en offrant une ambiance sereine et professionnelle.
La lumière naturelle occupe une place centrale dans le projet. De grandes verrières au style industriel rythment les façades et apportent une luminosité généreuse aux espaces de soins. En toiture, l’ajout de fenêtres de type Velux permet de diffuser la lumière jusque dans les espaces les plus en retrait, créant une atmosphère claire et apaisante.
Le résultat est un lieu spacieux, aéré et accueillant, où architecture et fonctionnalité s’allient pour offrir aux patients comme aux praticiens un cadre de travail lumineux et confortable.