






Labadie - MARSEILLE
architecture d'interieurAnnée : 2022
Surface : 98m²
Budget : 70 000 euros HT
Mission de conception et depot des pièces administratives
Maitrise d'ouvrage privée
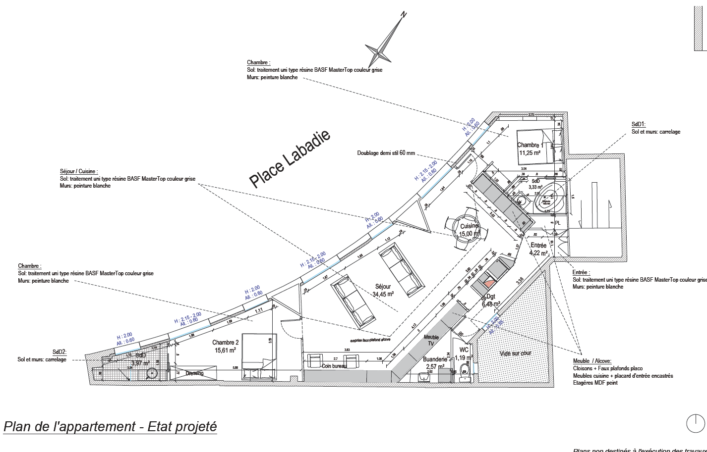
Cet appartement de 98 m², situé dans un immeuble en arc de cercle surplombant une place arborée de Marseille, a fait l’objet d’une rénovation totale. Le projet a consisté en une restructuration complète des espaces afin de repenser la distribution et d’apporter plus de fluidité à la vie quotidienne.
Un nouvel espace cuisine a été créé, accompagné de deux salles d’eau et sanitaires entièrement repensés. La configuration permet désormais de disposer de deux chambres distinctes, adaptées aux usages contemporains et à l’optimisation des volumes.
L’immeuble, dont la courbe enveloppe la place verdoyante, a inspiré la conception architecturale. Pour rompre avec le long couloir d’origine, un mobilier cloison sur mesure a été dessiné : à la fois élément fonctionnel et structurant, il organise l’espace en intégrant rangements, cuisine et séparation.
Le résultat est un appartement lumineux et ouvert, où la rationalité de l’aménagement se conjugue avec un confort chaleureux et une identité architecturale forte.