
Camille Blanc - VILLEJUIF
habitation restructurationAnnée : 2024
Surface : 212m²
Budget : 400 000 euros HT
Mission de conception et dépot des pièces administratives
Maitrise d'ouvrage privée
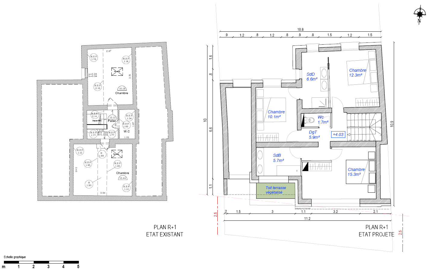
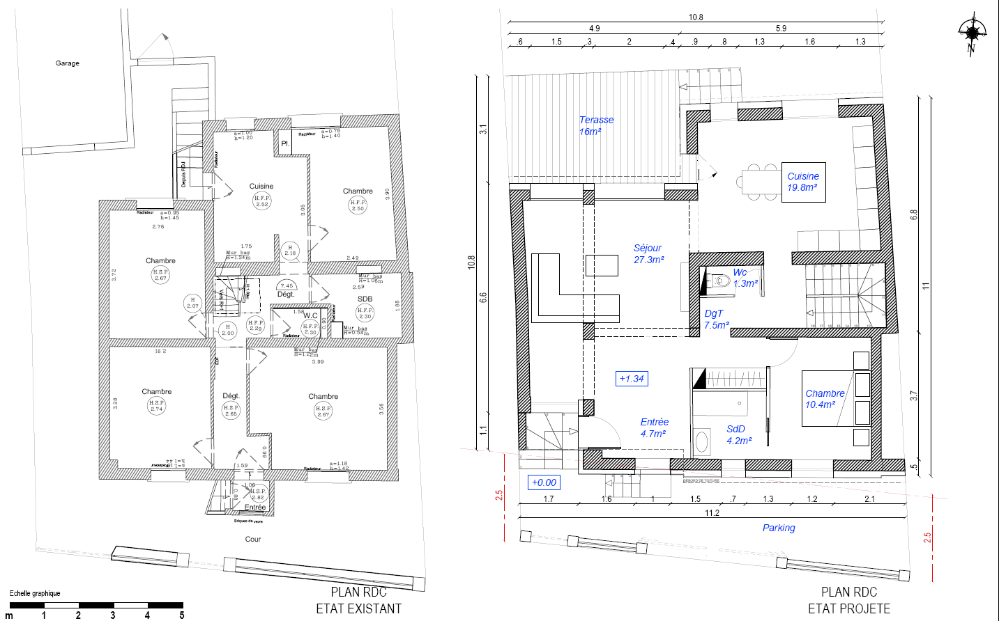
Cette maison de 212 m², située dans un quartier pavillonnaire de Villejuif, a été entièrement reprise et restructurée pour allier modernité, confort et luminosité.
La façade, réalisée en bi-matériaux dans des tonalités bois et beige, confère à l’habitation une identité élégante et contemporaine. L’intérieur a été totalement repensé, avec l’ajout de nouvelles surfaces et la création d’une terrasse au rez-de-chaussée, offrant des espaces de vie ouverts et conviviaux.
Un pan de mur vitré a été intégré afin de maximiser l’entrée de lumière naturelle et de créer un lien visuel avec l’extérieur. Le jardin a été aménagé en pleine terre, favorisant un espace paysager harmonieux et propice à la détente.
Résultat : une maison à la fois fonctionnelle et chaleureuse, où architecture, lumière et matériaux dialoguent pour offrir un cadre de vie raffiné et agréable.