



Piccola Terra - SURESNES
commerce ERPAnnée : 2021
Surface : 110m²
Budget : 53 000 HT
Mission complète
Maitrise d'ouvrage privée
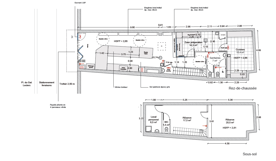
Ce local commercial de 110 m², situé en plein centre-ville de Suresnes, a fait l’objet d’une rénovation complète afin d’accueillir un traiteur italien dans un espace moderne et fonctionnel.
La façade a été entièrement repensée, avec l’installation d’une baie coulissante et l’intégration des logos et couleurs de l’entreprise, offrant une identité visuelle claire et attractive. À l’intérieur, l’aménagement a été optimisé pour combiner espaces de stockage et zones de présentation, garantissant à la fois praticité et confort pour le personnel et les clients.
Résultat : un local commercial accueillant et efficace, où le design et la fonctionnalité se conjuguent pour valoriser l’activité et l’identité de l’enseigne.