
Taboise - CLAMART
habitation extensionAnnée : 2025
Surface : 201m² (50m² d'extension)
Budget : 270 000 euros HT
Mission de conception et dépot des pièces administratives (en cours)
Maitrise d'ouvrage privée
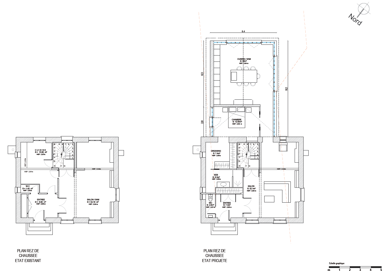
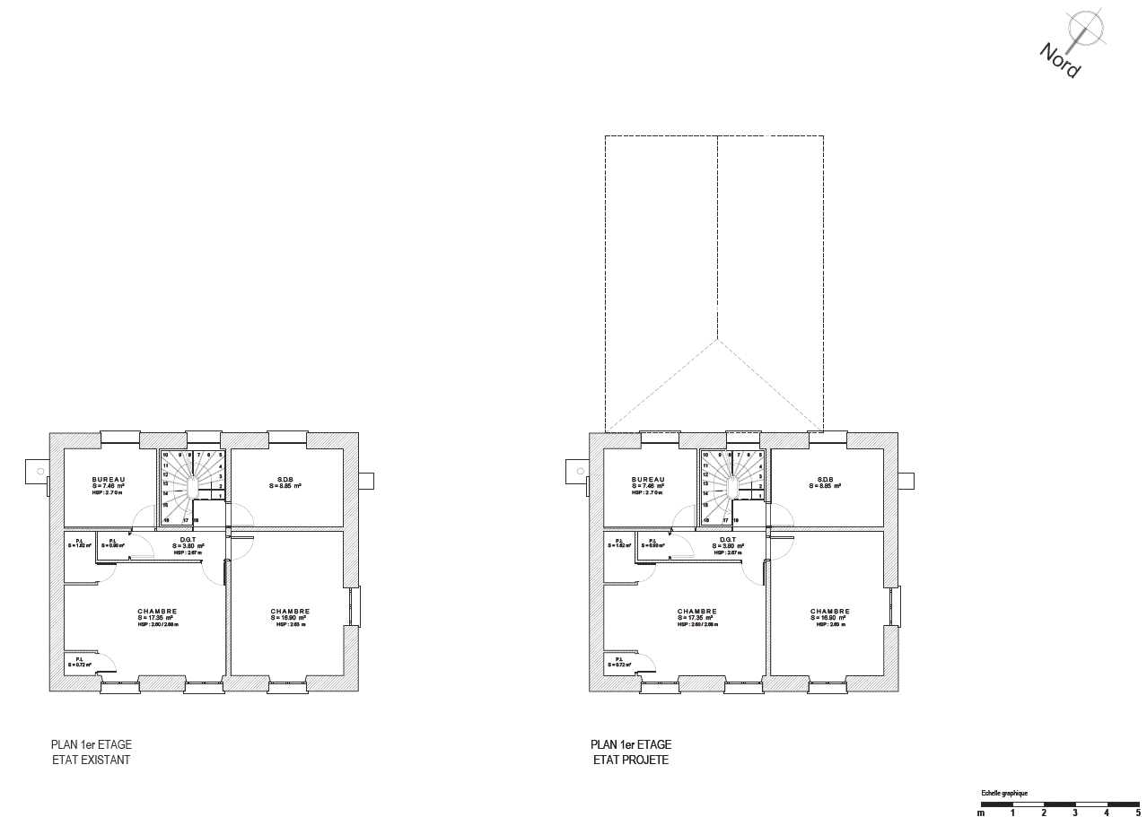
Cette extension de 50 m² a été réalisée à l’arrière d’une maison bourgeoise à Clamart, dans le but de créer de nouveaux espaces de vie lumineux et ouverts.
Le projet comprend la reprise de la toiture et la construction d’une extension métallique de type véranda, offrant transparence et ouverture sur le jardin. Une attention particulière a été portée à la continuité des coloris et des matériaux entre les menuiseries existantes et la nouvelle structure, afin de préserver l’harmonie architecturale de l’ensemble.
Cette extension accueille désormais une cuisine ouverte, une salle à manger et une chambre, transformant l’organisation intérieure et apportant confort et fluidité aux espaces de vie.
Résultat : une extension fonctionnelle et esthétique, où lumière, matériaux et circulation se conjuguent pour offrir un cadre de vie agréable et contemporain.