






Franklin - ST GERMAIN EN LAYE
architecture d'interieurAnnée : 2021
Surface : 159m²
Mission complète
Maitrise d'ouvrage privée
Cet appartement de 159 m², situé à Saint-Germain-en-Laye, a fait l’objet d’une rénovation et d’un réaménagement complet pour optimiser la fonctionnalité et la circulation des espaces.
L’ensemble de l’agencement, des sols, des menuiseries et des revêtements a été repris afin de moderniser l’intérieur tout en respectant le caractère existant. Un sous-sol a été aménagé pour accueillir un bureau et une pièce home cinéma, offrant ainsi des espaces polyvalents et confortables.
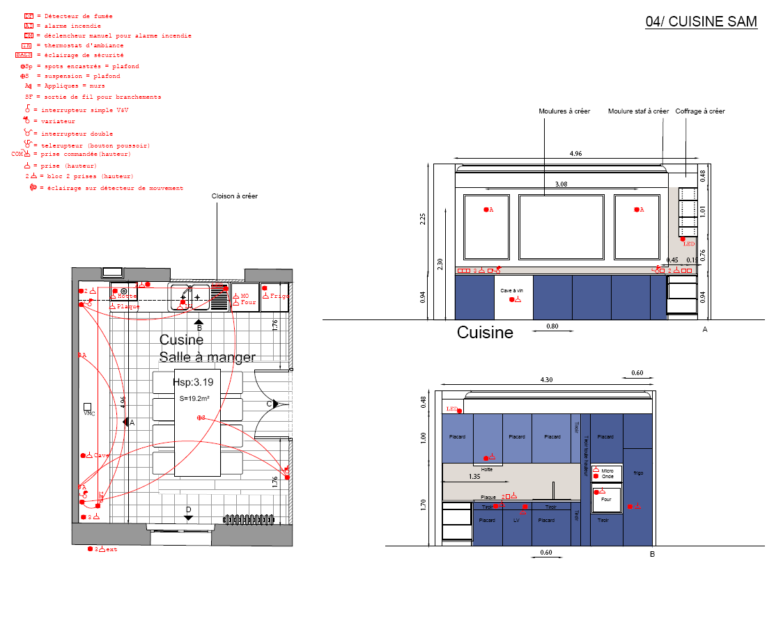
La cuisine a été conçue ouverte sur la salle à manger, favorisant fluidité et convivialité, tandis que l’entrée a été repensée avec un mobilier sur mesure et la restauration des moulures, combinant praticité et élégance classique.
Résultat : un appartement rénové et harmonieux, où confort, fonctionnalité et respect du style architectural se rencontrent pour créer un cadre de vie à la fois moderne et chaleureux.