Paul Laurens - VILLEJUIF

habitation neuf

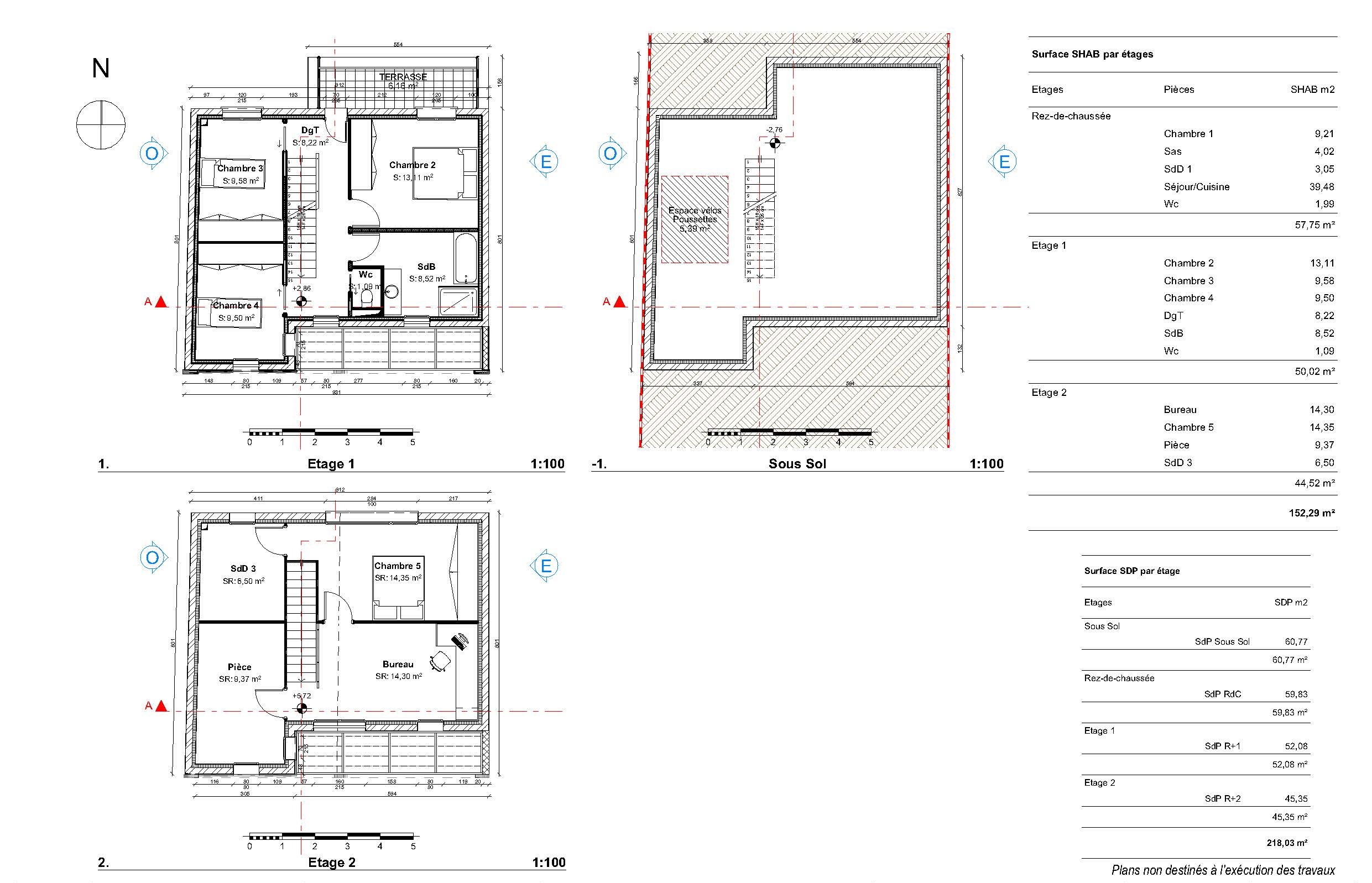
Année : 2024
Surface : 152m²
Budget : 380 000 euros TTC
Mission de conception

Ce projet consiste en la construction d'une maison individuelle en région parisienne.
Composées d'un Rez de chaussée, deux étages et d'un sous-sol, cette maison de 150m² répond parfaitement aux besoins d'une famille. Avec ces deux jardins, Surd et Nord, la construction est optimisée par rapport à la parcelle existante.
Les grands espaces de vie au RDC et les terrasses aux différents niveaux offrent luminossité et espaces aux habitants.
La façade, traitées en deux teintes, reprend les codes classiques d'une maison à toiture en double pentes, mais avec une ecriture graphique et contemporaine. Cette maisons s'inscrit naturellement dans la rue, avec les maisons avoisinnantes.

X